Режим работы:
пн-чт 09:00-18:00
пт 09:00-17:00
сб-вс - выходной

625001, Россия, г.Тюмень,
ул. Бабарынка, 56а

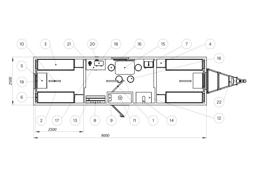
    Бытовка под инструмент

    Цена: 368 000 руб.
    Заказать
    Продажа бытовка под инструменты. Расчеты в течении дня. Актуальная стоимость на сайте. Изготовление под заказ. Производство в Тюмени 8(3452)56-41-48.
    Товар поставляется под заказ
    Каркас
    Цельнометаллический
    Утепление
    200 мм. мм
    Вариант крыши
    Цельносварная
    Материал внутренней отделки
    Пластик (ПВХ)
    Материал наружней отделки
    Сайдинг
    Покрытие пола
    Лист металлический
    Назначение бытовки
    Инструментальная

    Бытовка под инструмент – незаменимый элемент на любой стройке. Это удобное и практичное решение для хранения различных инструментов и оборудования.

    Эффективное использование пространства

    Бытовка под инструмент позволяет организовать пространство так, чтобы все необходимое было под рукой. Компактные размеры и продуманная конструкция предоставляют простор для хранения большого количества инструментов.

    Безопасность и надежность

    Качественные материалы и надежные замки обеспечивают сохранность ваших инструментов. Благодаря устойчивости к воздействию окружающей среды, бытовка под инструмент служит долгие годы.

    Удобство транспортировки

    Легкость конструкции и наличие колес позволяют легко перемещать бытовку по территории стройплощадки.

    Соблюдение норм хранения

    Бытовка создана с учетом всех норм и требований по хранению инструментов и оборудования. Это помогает предотвратить преждевременный износ и повреждения, обеспечивая долгий срок службы каждого инструмента.

    Экономия средств

    Вы экономите на приобретении дополнительных ящиков и шкафов для хранения инструмента. Все необходимое убирается в одном месте, что делает рабочий процесс более организованным и продуктивным.

    Адаптация под нужды заказчика

    Изготавливаем различные размеры и конфигурации. В зависимости от ваших требований, можно выбрать модель с разными типами полок, ящиков и креплений.

    Сервис и поддержка

    При покупке получаете гарантию качества и поддержку нашего сервисного центра. Мы готовы ответить на любые вопросы и помочь с вопросами по эксплуатации продукта.

    Бытовка под инструмент от завода НЕОФИТ – это надежное и выгодное решение для хранения инструмента на стройплощадке. Мы предлагаем продукцию высокого качества по конкурентоспособным ценам. Обратившись к нам, вы получаете комплексный сервис и поддержку на всех этапах сотрудничества.

    Не стоит рисковать дорогостоящим оборудованием, лучше обеспечьте для него надежное и безопасное место. С нашими бытовками ваш инструмент будет в безопасности!

    Основные условия приобретения бытовки

    Параметр

    Описание

    Размеры

    Различные варианты

    Цена

    От 303 тыс. руб.

    Предоплата

    60%

    Остаток оплаты

    40% за 2 дня до отгрузки

    Срок изготовления

    От 12 до 24 рабочих дней

    Доставка

    По всей России

    Самовывоз

    со склада в Тюмени

    Контакты для заказа

    info@zavodnf.ru, +7(3452) 56-41-48

    Заказать бытовку для проживания

    Для повышения удобства сайта мы используем cookies. Оставаясь на сайте, вы соглашаетесь с политикой их применения и политикой конфиденциальности, согласие на обработку персональных данных.