Режим работы:
пн-чт 09:00-18:00
пт 09:00-17:00
сб-вс - выходной

625001, Россия, г.Тюмень,
ул. Бабарынка, 56а

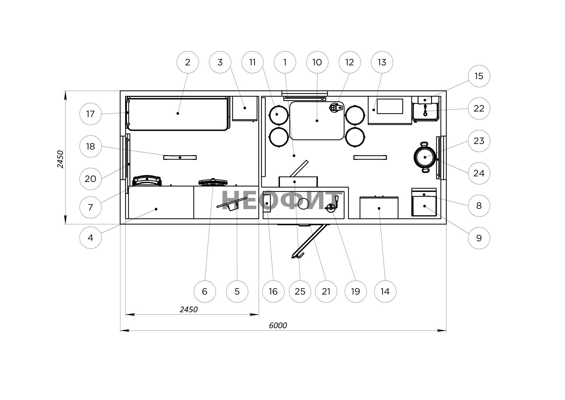
    Бытовка со складом

    Цена: 365 000 руб.
    Заказать
    Продажа бытовка со складом. Актуальная стоимость на сайте. Расчет в течении рабочего дня. Изготовление под заказ. Производство в Тюмени 8(3452)49-24-36.
    Товар поставляется под заказ
    Каркас
    Цельнометаллический
    Утепление
    200 мм. мм
    Вариант крыши
    Цельносварная
    Материал внутренней отделки
    ЛДСП
    Материал наружней отделки
    Профнастил оцинкованный
    Покрытие пола
    Линолеум коммерческий
    Назначение бытовки
    Склад

    Бытовка со складом — это удобное и практичное решение для хранения инструментов, оборудования или материалов как на даче, так и на строительной площадке. Завод «НЕОФИТ» предлагает приобрести бытовки со складом напрямую от производителя по цене от 367 тысяч рублей. Продукция отличается долговечностью, качеством сборки и устойчивостью к неблагоприятным погодным условиям, что делает ее отличным выбором для продолжительного использования в различных условиях.

    Изготовленные из качественных материалов, бытовки со складом могут быть адаптированы под индивидуальные потребности заказчика. Мы предлагаем различные варианты планировки и размеров, чтобы максимально удовлетворить ваши запросы. Каждая бытовка со складом оборудована всем необходимым для удобства эксплуатации: надежные двери, прочные полы и удобные системы вентиляции.

    Преимущества заказа бытовки со складом от завода «НЕОФИТ»

    • Прямые поставки от производителя;
    • Доступные цены без переплат посредникам;
    • Гарантия качества на все модели;
    • Быстрая доставка и установка.

    Вы можете купить бытовку со складом напрямую у нас, не тратя лишнее время и деньги на посредников. Для получения дополнительной информации и консультации по выбору подходящей модели обращайтесь к нашим специалистам.

    Условия оплаты: предоплата 60%, остаток 40% за 2 дня перед отгрузкой. Работаем с НДС, сертификаты организации доступны по ссылке.

    Производим доставку транспортной компанией, по территории РФ. Длина автомобильной платформы около 13 метров, поэтому на нее без проблем размещается две бытовки размерами 2.5х6 метра. Погрузка на машину осуществляем самостоятельно. Также есть услуга самовывоза с нашего склада в Тюмени.

    Мы находимся по адресу: г. Тюмень, ул. Бабарынка, 56а. Перед отгрузкой необходимо сообщить габариты автомобиля, дату и время прибытия.

    Возможно изготовление по индивидуальным размерам и конструктиву. В некоторых случаях заказываются блок контейнеры, это те же бытовки, но на базе морских контейнеров. Подходят для мест, где нужна высокая прочность и блоки часто перевозятся.

    Что бы мы смогли сформировать коммерческое предложениес указанием цен и материалов, на электронную почту info@zavodnf.ru вышлите ваш запрос с подробной схемой необходимой бытовки.

    Все цены, представленные на сайте, не являются публичной офертой и носят рекомендательный характер. Актуальную цену уточняйте у менеджеров по номеру +7(3452) 56-41-48. Срок изготовления бытовок индивидуален, и зависит от сложности и загруженности на производстве. В среднем производство одного заказа занимает от 12 до 24 рабочих дней. В нашем цехе возможно одновременное изготовление до 12 бытовок. По окончании предоставляем пакет закрывающих документов, паспорт на готовое изделие и сертификаты соответствия материалов.

    Заказать бытовку для проживания

    Для повышения удобства сайта мы используем cookies. Оставаясь на сайте, вы соглашаетесь с политикой их применения и политикой конфиденциальности, согласие на обработку персональных данных.