Режим работы:
пн-чт 09:00-18:00
пт 09:00-17:00
сб-вс - выходной

625001, Россия, г.Тюмень,
ул. Бабарынка, 56а

    Временная бытовка

    Цена: 317 000 руб.
    Заказать
    Продажа временные бытовки. Изготовление под заказ.Расчеты в течении дня. Актуальная цена на сайте. Производство в Тюмени 8(3452)49-24-36.
    Товар поставляется под заказ
    Каркас
    Труба профильная
    Утепление
    150 мм. мм
    Вариант крыши
    Двухскатная
    Материал внутренней отделки
    Пластик (ПВХ)
    Материал наружней отделки
    Сайдинг
    Покрытие пола
    Лист металлический
    Назначение бытовки
    Строительная
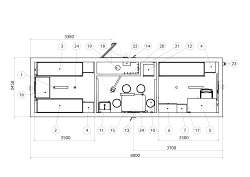
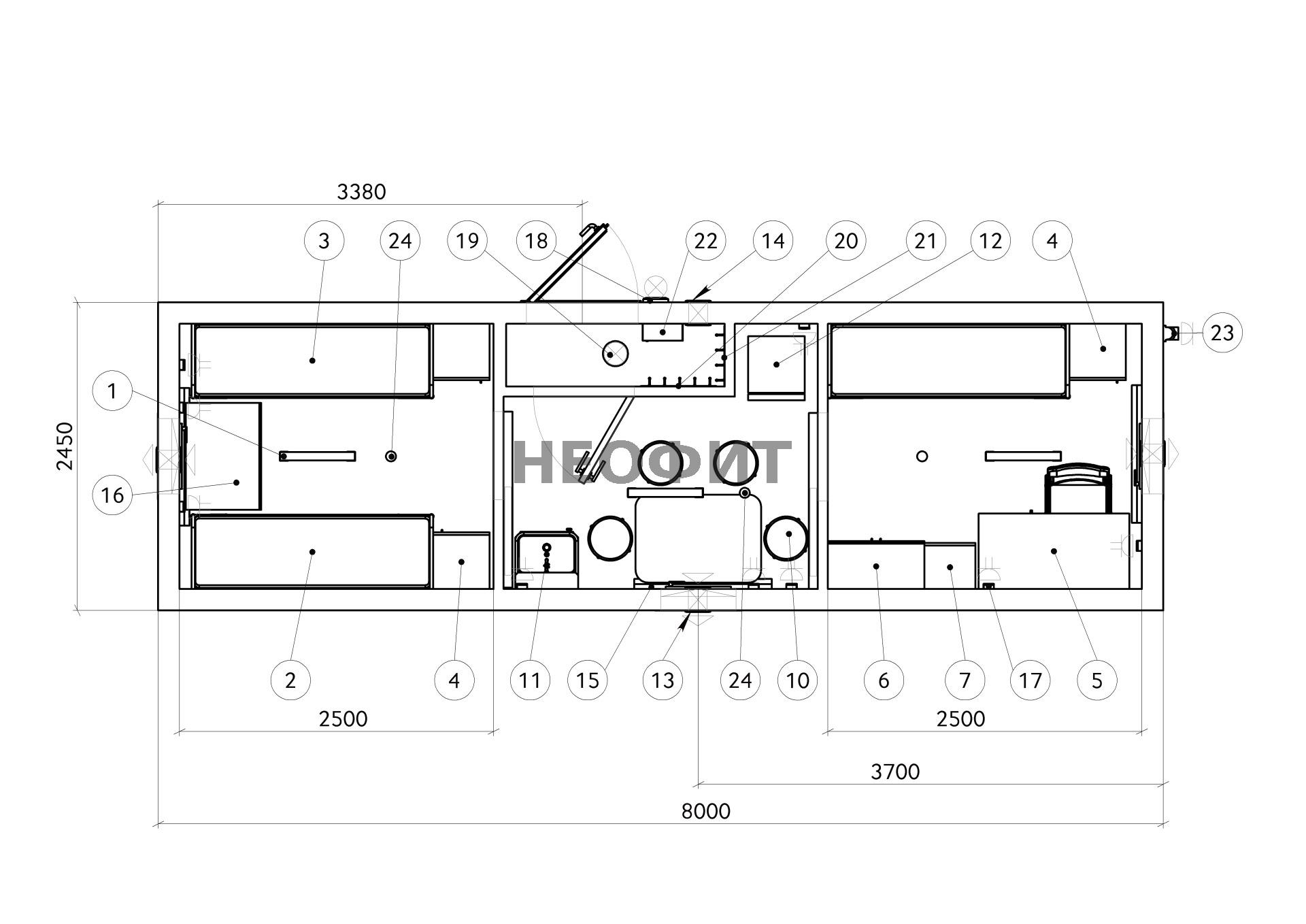
    Временные бытовки используются для проживания сотрудников, на время выполнения строительно монтажных работ. Монтаж проводится на подготовленную и выравненную площадку. В качестве фундамента могут использоваться бетонные блоки или дорожные плиты.

    В условиях, когда временное жилье или офисное пространство становится неотъемлемой частью проекта, временная бытовка от НЕОФИТ предлагает оптимальное решение. Мы понимаем важность создания рабочего пространства, которое соответствует всем требованиям безопасности, комфорта и функциональности.

    Временные бытовки НЕОФИТ отличаются прочностью конструкции, высокой степенью утепления и возможностью эксплуатации в любых погодных условиях. Это делает их идеальным выбором для строительных площадок, мероприятий, а также в качестве временного решения для офисных помещений.

    Модульность и гибкость конструкции позволяют настроить бытовку в соответствии с уникальными потребностями проекта. Будь то дополнительное офисное пространство, комната отдыха для сотрудников или складские помещения, НЕОФИТ предлагает решения, которые можно адаптировать под любые задачи.

    Каждая бытовка оборудована необходимой инфраструктурой, включая электроснабжение, освещение, отопление и, при необходимости, кондиционирование воздуха. Это создает максимально комфортные условия для работы и пребывания в любое время года.

    НЕОФИТ заботится о своих клиентах, предлагая полный спектр услуг от консультации и проектирования до доставки, установки и последующего обслуживания. Наша цель — обеспечить вас всем необходимым для успешного и эффективного ведения вашего проекта.

    Выберите надежность и комфорт с временной бытовкой от НЕОФИТ. Позвоните нам по номеру +7 (3452) 56-41-48 и получите индивидуальное предложение, которое соответствует именно вашим требованиям. Наша команда экспертов готова помочь вам на каждом этапе, от выбора подходящего решения до его реализации. Ваш проект заслуживает лучшего!

    Условия оплаты: предоплата 60%, остаток 40% за 2 дня перед отгрузкой. Работаем с НДС, сертификаты организации доступны по ссылке.

    Производим доставку транспортной компанией, по территории РФ. Длина автомобильной платформы около 13 метров, поэтому на нее без проблем размещается две бытовки размерами 2.5х6 метра. Погрузка на машину осуществляем самостоятельно. Также есть услуга самовывоза с нашего склада в Тюмени.

    Мы находимся по адресу: г. Тюмень, ул. Бабарынка, 56а. Перед отгрузкой необходимо сообщить габариты автомобиля, дату и время прибытия.

    Возможно изготовление по индивидуальным размерам и конструктиву. В некоторых случаях заказываются блок контейнеры, это те же бытовки, но на базе морских контейнеров. Подходят для мест, где нужна высокая прочность и блоки часто перевозятся.

    Что бы мы смогли сформировать коммерческое предложение с указанием цен и материалов, на электронную почту info@zavodnf.ru вышлите ваш запрос с подробной схемой необходимой бытовки.

    Все цены, представленные на сайте, не являются публичной офертой и носят рекомендательный характер. Актуальную цену уточняйте у менеджеров по номеру +7(3452) 56-41-48. Срок изготовления бытовок индивидуален, и зависит от сложности и загруженности на производстве. В среднем производство одного заказа занимает от 12 до 24 рабочих дней. В нашем цехе возможно одновременное изготовление до 12 бытовок. По окончании предоставляем пакет закрывающих документов, паспорт на готовое изделие и сертификаты соответствия материалов.

    Заказать бытовку для проживания

    Для повышения удобства сайта мы используем cookies. Оставаясь на сайте, вы соглашаетесь с политикой их применения и политикой конфиденциальности, согласие на обработку персональных данных.