Режим работы:
пн-чт 09:00-18:00
пт 09:00-17:00
сб-вс - выходной

625001, Россия, г.Тюмень,
ул. Бабарынка, 56а

    Жилая бытовка с душем

    Цена: 332 000 руб.
    Заказать
    Продажа жилая бытовка с душем. Актуальная цена на сайте. Расчет в течении рабочего дня. Изготовление под заказ. Производство в Тюмени +7(3452)49-24-36.
    Товар поставляется под заказ
    Каркас
    Цельнометаллический
    Утепление
    200 мм. мм
    Вариант крыши
    Цельносварная
    Материал внутренней отделки
    Пластик (ПВХ)
    Материал наружней отделки
    Сайдинг
    Покрытие пола
    Лист металлический
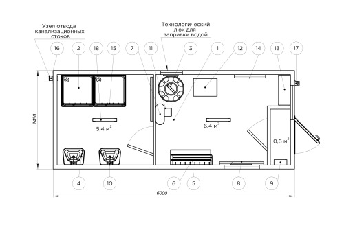
    Жилая бытовка состоит из помещения для проживания и душевой. Вода размещается в пластиковой емкости объемом 1 куб. Для подачи горячей воды используется бойлер. В некоторых случаях душевая монтируется вместе с раздевалкой и бытовкой баней.

    Завод НЕОФИТ предлагает современное и практичное решение для организации временного или постоянного проживания на вашем объекте — жилую бытовку с душем. Это автономный модуль полной заводской готовности, который обеспечивает комфортные бытовые условия для рабочих, охраны или персонала непосредственно на строительной площадке, производственной территории или удаленном объекте.

    Наше ключевое преимущество — комплексный подход. Мы создаем не просто утепленное помещение, а полноценное жилое пространство, где продумана каждая деталь для удобства пользователей. Наличие собственного санузла с душем кардинально повышает уровень бытового комфорта, что особенно важно при длительном размещении людей, и избавляет от необходимости строить отдельные душевые.

    Конструктивные особенности и стандартная комплектация:

    Конструкция основывается на прочном металлическом каркасе, обеспечивающем надежность и долговечность. Пол, стены и кровля имеют эффективное утепление для комфортного использования жилой бытовки с душем в любое время года.

    Стандартная планировка предусматривает функциональное зонирование. Обычно модуль разделен на жилое отсек с местами для отдыха и отдельный санитарный блок.

    Это центральный элемент нашей жилой бытовки с душем. Блок включает в себя душевую кабину или поддон, компактный санузел и умывальник. Все инженерные коммуникации (разводка воды и канализации) смонтированы на заводе.

    Объект поставляется с выполненной внутренней электропроводкой, розетками, светильниками, а также часто включает базовую систему отопления (например, электрический конвектор или инфракрасный обогреватель) для поддержания комфортной температуры.

    Преимущества покупки жилой бытовки с душем у завода НЕОФИТ

    1. Все включено: Вы получаете готовый к эксплуатации модуль. После доставки на объект требуется лишь подключение к внешним источникам электричества, водоснабжения и канализации (или использование автономных резервуаров).
    2. Экономия времени и средств: Такое решение значительно выгоднее и быстрее капитального строительства бытовых городков. Вам не нужно отдельно заниматься проектированием, закупкой материалов и сборкой.
    3. Гибкость конфигурации: Мы предлагаем как типовые модели, так и возможность модификации: увеличение количества спальных мест, установка дополнительных окон, модернизация системы отопления, внешняя и внутренняя отделка на выбор.
    4. Прямые поставки от производителя: Работа без посредников позволяет нам предлагать оптимальную цену и контролировать качество на всех этапах производства — от резки металла до финальной отделки.

    Жилая бытовка с душем от завода НЕОФИТ — это инвестиция в благополучие вашего персонала и эффективность работы на объекте. Комфортные условия проживания напрямую влияют на продуктивность и лояльность сотрудников.

    Чтобы узнать актуальную стоимость, выбрать комплектацию и заказать доставку, свяжитесь с нашими специалистами по телефону: +7 (3452) 21-58-28. Мы поможем подобрать оптимальное решение для ваших задач.

    Условия оплаты: предоплата 60%, остаток 40% за 2 дня перед отгрузкой. Работаем с НДС, сертификаты организации доступны по ссылке.

    Производим доставку транспортной компанией, по территории РФ. Длина автомобильной платформы около 13 метров, поэтому на нее без проблем размещается две бытовки размерами 2.5х6 метра. Погрузка на машину осуществляем самостоятельно. Также есть услуга самовывоза с нашего склада в Тюмени.

    Мы находимся по адресу: г. Тюмень ул. Бабарынка 56а. Перед отгрузкой необходимо сообщить габариты автомобиля, дату и время прибытия.

    Возможно изготовление по индивидуальным размерам и конструктиву. В некоторых случаях заказываются блок контейнеры, это те же бытовки, но на базе морских контейнеров. Подходят для мест, где нужна высокая прочность и блоки часто перевозятся.

    Что бы мы смогли сформировать коммерческое предложение с указанием цен и материалов, на электронную почту info@zavodnf.ru вышлите ваш запрос с подробной схемой необходимой бытовки.

    Все цены, представленные на сайте, не являются публичной офертой и носят рекомендательный характер. Актуальную цену уточняйте у менеджеров по номеру +7(3452) 56-41-48. Срок изготовления бытовок индивидуален, и зависит от сложности и загруженности на производстве. В среднем производство одного заказа занимает от 12 до 24 рабочих дней. В нашем цехе возможно одновременное изготовление до 12 бытовок. По окончании предоставляем пакет закрывающих документов, паспорт на готовое изделие и сертификаты соответствия материалов.

    Заказать бытовку для проживания

    Для повышения удобства сайта мы используем cookies. Оставаясь на сайте, вы соглашаетесь с политикой их применения и политикой конфиденциальности, согласие на обработку персональных данных.